SOPORTE MAGNETICO UNIVERSAL MITUTOYO


SOPORTE MAGNETICO UNIVERSAL MITUTOYO

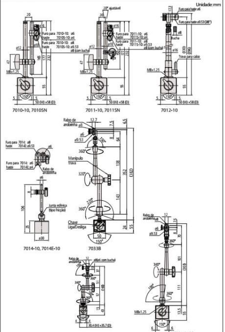
 Soporte Magnetico Universal

Fuerza de imantación 600 N 

Base magnetica 50x60x55mm con apoyo prism´atico

Con alojamiento Ø 6mm Ø 8mm para relojes comparadores

Co ajuste fino

 

 

Sin comentarios